Consultation closed
Consultation on the proposed sale of part of 177 Armagh Street has now closed. People were able to provide feedback between 8 October and 26 October 2025. You will be able to read their feedback and the staff recommendation shortly.
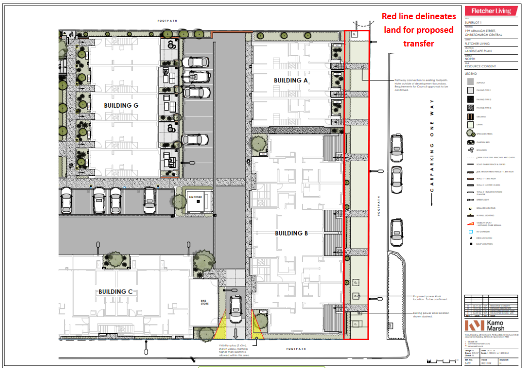
Fletcher Residential Ltd is building houses on the corner of Armagh and Madras Streets (199 Armagh Street).
Between their building site and the formed public footpath, is an unused 3.5 metre wide, 49.59 metre long strip of land (173m2) that is Council owned.
 Fletcher Residential Ltd have presented an unsolicited
proposal to Council to purchase this strip of land and
incorporate it into their development for stormwater easements and pedestrian
access.
About the land
The Margaret Mahy Family Playground was delivered as part of the Christchurch Central Recovery Plan after the earthquakes. The strip of land was later acquired from Ōtākaro Limited by Council and forms part of the title associated with the playground. The land has never been improved nor used as part of the playground and is considered surplus to requirements.
Council assessed that the sale is consistent with the Councils Disposal of Property Policy 2000 and Councils Retention Criteria, meaning disposal can be considered an option. The land is not affected by any existing plans, budgets or strategies and does not possess special cultural, heritage or environmental values. A sale would have no effect on Margaret Mahy playground. Council has no identified unmet needs the property could be used to address.
Cost to Council
Fletcher Residential Ltd would be responsible for meeting all Council costs associated with the negotiation and completion of the proposed sale.
 
                     
                     
                     
                    