Decision made
The Waipuna Halswell-Hornby-Riccarton Community Board decided to approve this tree planting plan
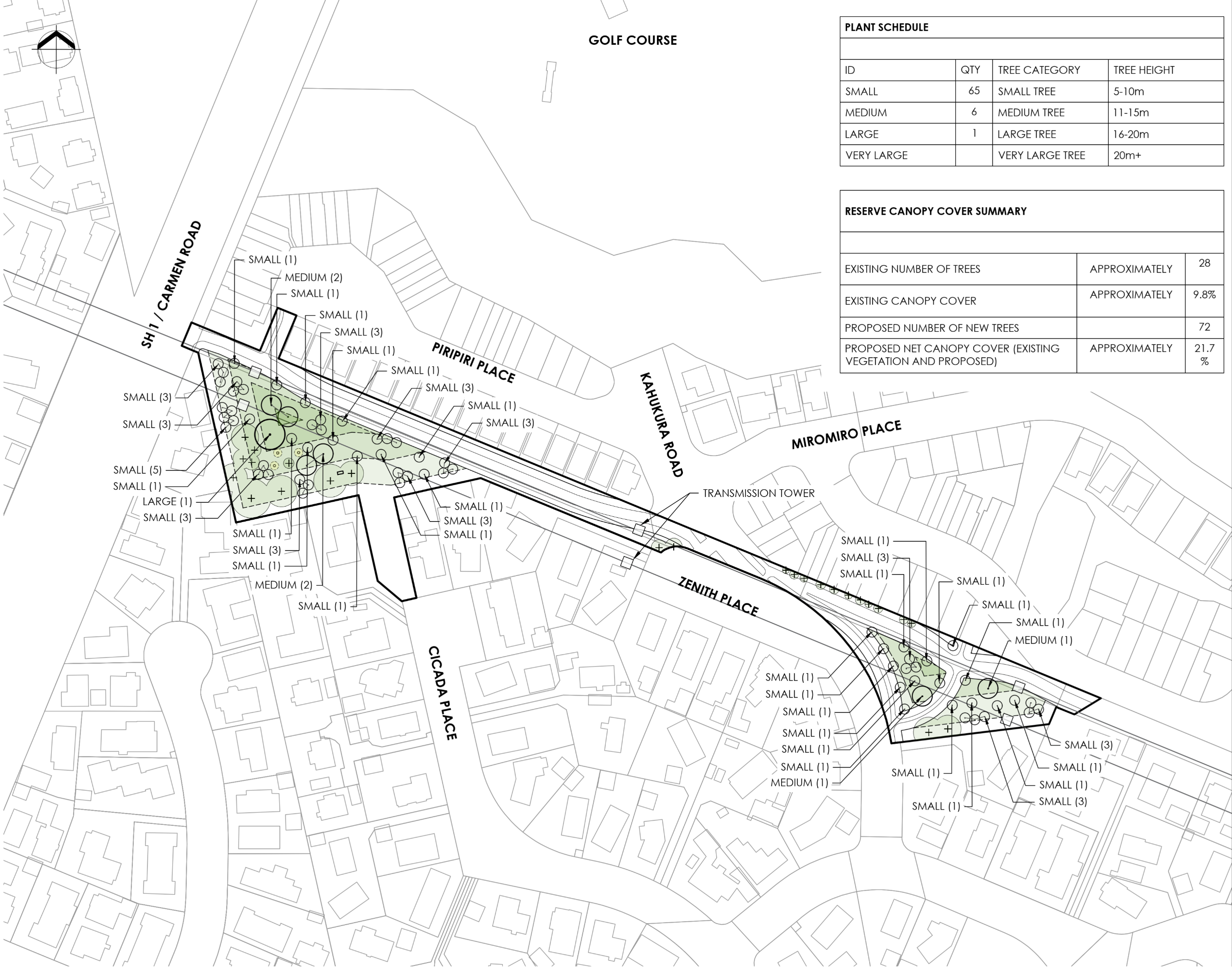
Fast facts - Cicada Reserve
Examples of trees we're planting
Planned tree planting areas
Swipe the slider from left to right to see the existing trees and where we plan to plant:
Check out our shade map tool
Look at the tree planting plan in 3D and simulate tree shade at any time of the day. Feeling lost? Watch our tutorial to become a pro.
Give feedback
Ask a question
We will get back to you as soon as possible, however for more technical questions this may take a number of days.
To ask a question you must create an account or log in.
These are the people that are listening and responding to your questions.
Tree planting team
{{question.description}}
