Decision made
The Waihoro Spreydon-Cashmere-Heathcote Community Board approved the tree planting plan
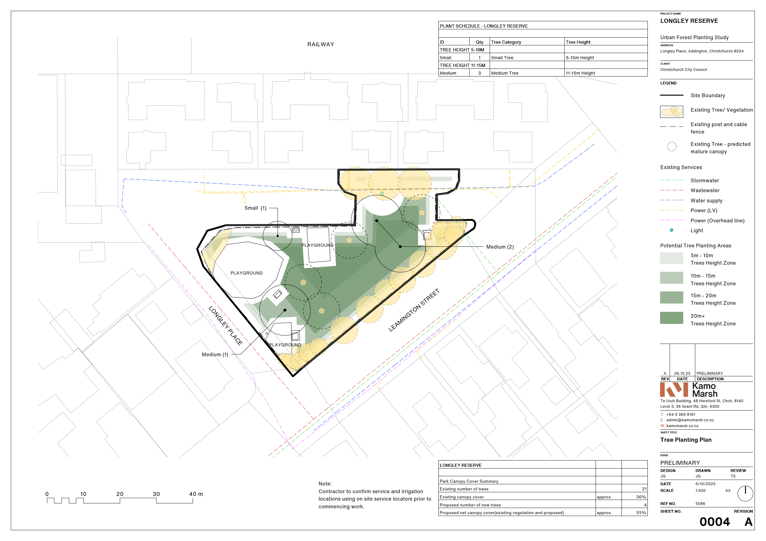
Fast facts - Longley Reserve
Examples of trees we're planting
Planned tree planting areas
Birds eye view
Swipe the slider from left to right to see the existing trees and where we plan to plant:
Check out our shade map tool
Look at the tree planting plan in 3D and simulate tree shade at any time of the day. Feeling lost? Watch our tutorial to become a pro.
